Il regolatore di portata EB è un dispositivo adatto per tutti i tipi di acque reflue.

La regolazione avviene grazie alla contrazione della vena liquida prodotto da una luce singola di passaggio

Questi regolatori di portata coprono un range di portate compreso tra 10 e 10.000 l/s per relativamente bassi carichi idraulici; costituiscono una alternativa quando le condizioni di portata e carico idraulico non consentono l’impiego dei regolatori di portata a vortice.

Sono particolarmente adatti per battenti idrici relativamente modesti e trovano applicazione nell’idraulica delle reti bianche e miste e nella gestione dei bacini idrici di grandi dimensioni.

Il costruttore

le caratteristiche

Installazione:

Principio di regolazione:

Costruzione:

le prestazioni

Range portata: 10 - 10.000 l/s

Range battente: 0,8 - 6 m (in funzione della portata)

Caratteristiche uniche

Regolatore di portata EB

Come tutti i regolatori di portata di Mosbaek A/S, anche i modelli EB si distinguono per:

  • Nessuna parte in movimento
  • Ampi passaggi liberi di dimensione costante durante tutto il funzionamento: il rischio di intasamento è ridotto
  • Non richiedere energia elettrica

La configurazione standard prevede il fissaggio a parete in corrispondenza della luce di uscita.

L’inserimento del regolatore non comporta perdite di quota.

Costruiti su misura

Regolatore di portata EB range di portate

Tutti i regolatori di portata di Mosbaek A/S sono progettati e costruiti per la portata e il battente idrico richiesti dal cliente.
Oltre alle condizioni idrauliche, il regolatore viene adattato alle specifiche condizioni operative; ad esempio, la piastra di fissaggio a parete può essere configurata per pareti piane o curve e in funzione del diametro della tubazione di uscita.

I regolatori di portata EB hanno la possibilità di variare la portata di regolazione di ± 25% rispetto al valore medio agendo sulla piastra in uscita.
Se il cliente ha la necessità di variare la portata, basta che comunichi a Mosbaek A/S il numero di matricola del regolatore e questa ricalcolerà il grado di apertura della luce modificabile spostando il deflettore fissato con due viti.

Il regolatore di portata EB può essere direttamente fissato a parete o tramite una slitta. Questa seconda soluzione permette la rimozione del dispositivo senza scendere in vasca e consente due modalità di funzionamento:

  • Regolazione della portata: con il regolatore inserito
  • Efflusso a luce libera: con il regolatore estratto

Mosbaek A/S può realizzare regolatori di portata EB che eccedono le portate standard.

Una curva esattamente definita

Regolatore di portata EB curva

La curva caratteristica del regolatore di portata EB ha un andamento parabolico come altri dispositivi a luce fissa.

Il regolatore di portata EB viene progettato per scaricare la portata massima alle condizioni di progetto (hdesign, Qdesign).

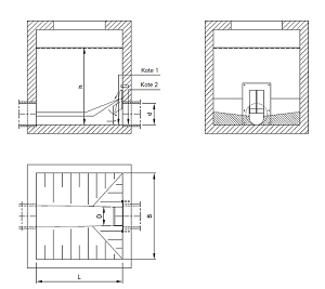
Installazione immersa

Regolatore di portata EB installazione

Il regolatore di portata EB viene montato sulla luce di uscita dell’opera idraulica e quindi, durante la fase di regolazione è immerso.

Nella versione standard viene fissato a parete tramite tasselli.

L’installazione standard prevede che, una volta installato il regolatore di portata, vengano realizzate delle banchine laterali a monte.

Le banchine laterali sono sagomate in modo che il refluo venga convogliato verso il regolatore; questo facilita le operazioni di lavaggio prima di entrare all’interno del manufatto.

Le operazioni di manutenzione e variazione della portata possono essere quindi eseguite in sicurezza e nelle migliori condizioni igieniche.

Il flusso rettilineo e la sagomatura della luce danno al regolatore una ottima capacità autopulente.

Le dimensioni ridotte ne consentono la facile installazione in manufatti esistenti e facilitano la progettazione dei nuovi.

Download